越谷市蒲生2丁目 中古戸建

12月1日 値下げ

3,090万円

埼玉県越谷市蒲生2丁目8-3

東武伊勢崎線「蒲生」駅徒歩16分

価格
3,090万円
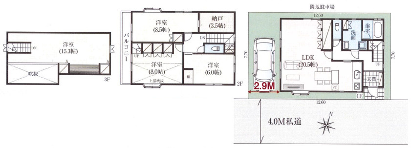
間取り
4LDK+S(納戸)
土地面積
97.02㎡
所在地
埼玉県越谷市蒲生2丁目8-3
交通

東武伊勢崎線蒲生」駅 徒歩16分

建物面積
143.77㎡
築年月
1996年11月(築29年)

物件の特徴

  • 室内洗濯機置場

  • 独立洗面台

セールスポイント

サービスルームがある4SLDKの中古戸建です。日が当たる明るい生活が送れるため南西向きはおすすめです。。越谷市にて売買戸建てを探すなら、ライブリーエステートがお手伝い致します。0120-953-337から、ご希望の条件をお申し付けください。

ポイント

内装リフォーム済 洗面所に窓 バルコニー 洗面化粧台 仲介手数料無料

担当者のコメント

梅本 由紀子

越谷市エリアでの住まいなら、住み心地も快適な「越谷市蒲生2丁目 中古戸建」はいかがでしょうか☆セブンイレブン越谷南町1丁目店まで徒歩7分と近場にコンビニがあるのもポイント☆仲介手数料が無料なので引越しの初期費用を抑えることができます!お気軽にお問合せください(^^♪

基本情報

販売戸数
-
総戸数
-
間取り / 詳細
4LDK+S(納戸)
LDK 20.5帖/洋室 8.5帖 1室/洋室 8.0帖 1室/洋室 6.0帖 1室/洋室 15.3帖 1室/S 3.5帖 1室
向き
南西
建物面積(坪数)
143.77㎡(43.49坪)
土地面積(坪数)
97.02㎡(29.34坪)
建ぺい率 /
容積率
-/-
築年月
1996年11月(築29年)
駐車場 /
月額料金
有 -
土地権利
所有権
土地
(敷金 / 保証金)
- / -
建物構造
木造 / 3階建
傾斜地部分面積
-
路地状敷地
-
私道負担面積
-
セットバック
高圧線下面積
-
施工会社
-
用途地域
第一種中高層住居専用
地目 / 地勢
宅地 / 平坦
接道状況
一方(南東 私道 4.0m)
国土法届出要否
不要
都市計画
市街化区域
総区画数 /
販売区画数
-/-
現況
空家
その他
法令上の制限
-
取引態様
仲介
引渡し
相談
リフォーム
    2025年10月
    キッチン 浴室 トイレ 壁 床
取引条件の
有効期限
2025年12月20日

設備条件

設備条件
  • リフォーム済 / 仲介手数料無料 / 室内洗濯機置場 / フローリング / バルコニー / 都市ガス / 公営水道 / 公共下水 / 電気有 / ガスコンロ / コンロ2口以上 / システムキッチン / コンロ3口 / 独立洗面台
設備(その他)
    -

その他

物件番号
98788358
管理コード
-
建築確認番号
-
情報更新日
2025年12月06日
次回更新予定日
2025年12月20日
取扱会社
  • LIVELY ESTATE 翔栄住宅設備株式会社
  • 埼玉県川口市大字安行吉蔵47-1 タクラマンション 105
  • TEL:0120-953-337
  • 埼玉県知事 (1) 第025188号
  • (公社)不動産保証協会/(公社)首都圏不動産公正取引協議会
備考
「越谷市蒲生2丁目 中古戸建」:越谷市エリアの新居にピッタリ。システムキッチン付きの物件で作業効率がとても良くなります。フローリングは掃除が簡単です。4SLDKの間取りです。当社スタッフと一緒に、お客様の新生活に相応しいマイホームを探しましょう。住まい探しを全力でサポート致しますので、まずはお気軽にご連絡ください。

周辺施設

  • セブンイレブン越谷南町1丁目店の画像

    コンビニエンスストア

    セブンイレブン越谷南町1丁目店

    489m(7分)

  • マルエツ蒲生店の画像

    スーパー

    マルエツ蒲生店

    504m(7分)

  • 越谷市立蒲生南小学校の画像

    小学校

    越谷市立蒲生南小学校

    640m(8分)

  • マツモトキヨシ東蒲生店の画像

    ドラッグストア

    マツモトキヨシ東蒲生店

    754m(10分)

  • 蒲生駅の画像

    蒲生駅

    1280m(16分)

  • 越谷市立光陽中学校の画像

    中学校

    越谷市立光陽中学校

    2320m(29分)

支払いシミュレーション

月々の支払額
9.6
購入希望物件価格
万円
頭金
万円
金利
%
返済額(ボーナス1回分)
万円
返済期間

※ボーナスは自動で年2回分で計算されます。

近隣の物件

  1. 越谷市東越谷6丁目 新築分譲住宅 全3棟 2号棟

    越谷市東越谷6丁目

    3SLDK (100.03㎡)

    3,680万円

  2. 越谷市弥栄町4丁目 新築分譲住宅 全3棟 1号棟

    越谷市弥栄町4丁目

    3LDK (97.70㎡)

    3,680万円

  3. 越谷市東越谷6丁目 新築分譲住宅 全3棟 3号棟

    越谷市東越谷6丁目

    3SLDK (97.60㎡)

    3,780万円

  4. 越谷市弥栄町4丁目 新築分譲住宅 全3棟 3号棟

    越谷市弥栄町4丁目

    3LDK (99.36㎡)

    3,980万円

越谷市蒲生2丁目 中古戸建

越谷市蒲生2丁目 中古戸建

3,090万円

-

4LDK+S(納戸)(143.77㎡)

お気軽にお問い合わせください

LINEからお問い合わせ 無料お問い合わせ

LIVELY ESTATE 翔栄住宅設備株式会社

0120-953-337

9:00~18:00

(休:水曜日・木曜日・祝日)